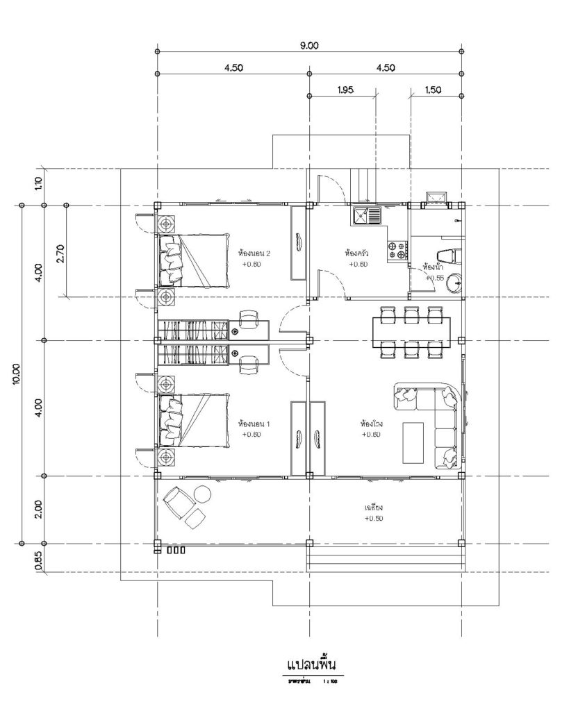
พื้นที่ใช้สอยภายในบ้าน
พื้นที่ 99.6 ตารางเมตร
ห้องนั่งเล่น
จำนวน 1 ห้อง
ห้องนอน
จำนวน 2 ห้อง
ห้องน้ำ
จำนวน 1 ห้อง
ห้องครัว
จำนวน 1 ห้อง
พื้นที่ 99.6 ตารางเมตร
จำนวน 1 ห้อง
จำนวน 2 ห้อง
จำนวน 1 ห้อง
จำนวน 1 ห้อง